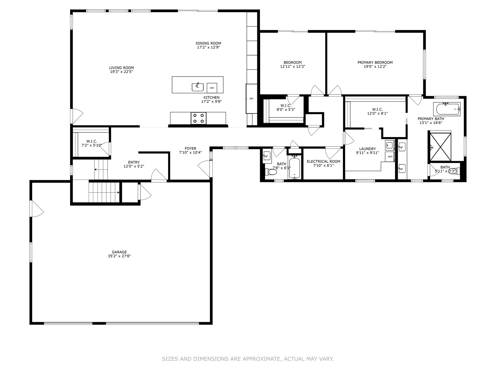
The Mielke ONE LEVEL W/ BONUS Main Level 1602 sq ft. 2 BED | 2 BATH Upper Level 639 sq ft. VIEW 3D TOUR VIEW FLOORPLAN