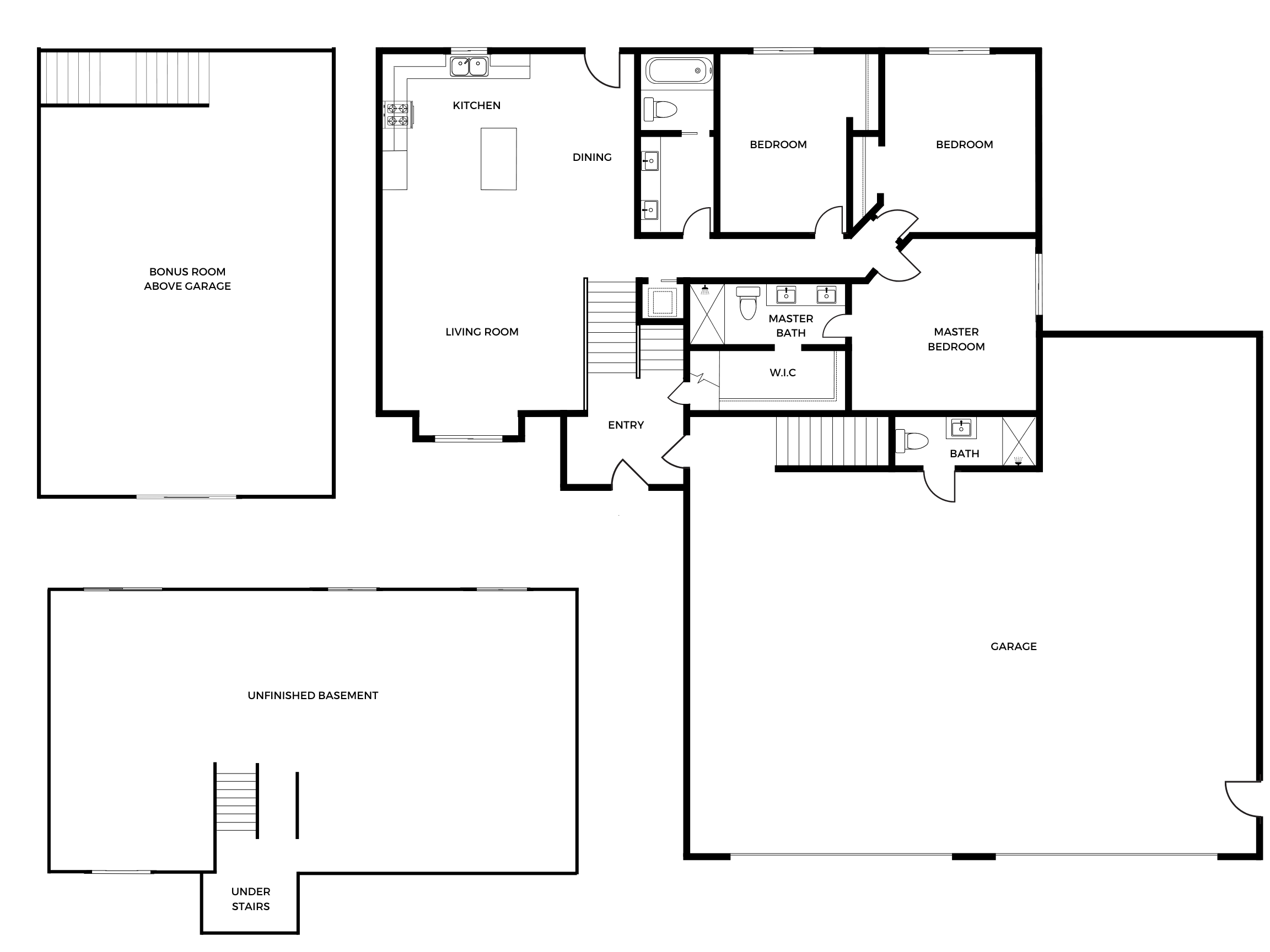
The Haylee SPLIT LEVEL Main Level 1701 sq ft. 3 BED | 2 BATH Unfinished Basement 1391 sq ft. 2 BED | 1 BATH Finished Garage 2703 sq ft. 1 BATH VIEW FLOOR PLAN